디에이치방배 ( 방배5구역 재개발)
안녕하세요 오늘 소개해드릴 내용은 서울특별시 서초구 방배2동 946-8번지 일대인 방배5구역 재개발
사업 소개해드리겠습니다. 오늘 적는 글은 가장 최근 글 이므로 놓치지 않으시기를 바랍니다.
방배5구역은 강남권에서 재개발 사업을 하고있는 가장 큰 단독 주택 재건축 단지입니다.
재개발이 완료가되면 총 3080세대가 완성될 예정이며 2016년 관리처분인가를 승인받고
현재는 철거신고에 들어갔기 때문에 곧 착공이 시작되고 연말즈음 분양이 시작될 예정입니다.

디에이치방배 ( 방배5구역 재개발) 계획
디에이치 방배는 현재 철거 신고까지 들어간 상태이며 곧 철거가 되고 착공에 들어가게 되면
23년 후반기쯤 분양 및 청약이 시작될 예정으로 보입니다. 시공사는 현대건설에서 하기로 했으며
재개발이 되면 디에이치방배로 재거듭 날 예정입니다.
디에이치방배 ( 방배5구역 재개발) 위치
디에이치 방배는 서초구 방배2동 946-8번지 일대 위치하고 있습니다. 현재는 방배 5 구역 재개발
지역에 속하여 조합원수는 1,142명으로 대규모 재건축 사업이라고 할수있겠습니다.
세대수는 총 3080세대입니다 그 중 1700세대는 조합원들이 가져가게 되고 나머지 1105세대를
일반분양으로 모집할 계획입니다. 층수는 지하 4층 ~ 지상 33층으로 고층이며 총 29개 동으로
이루어지겠습니다.
| 위치 | 서초구 방배2동 946-8번지 일대 |
| 세대정보 | 총 3080세대 (일반분양 1105세대) |
| 규모 | 총 29개동 (지하4층 ~ 최고 33층 ) |
| 일반분양 주택형 (전용면적) | 24평 / 33평 / 39평 / 43평 / 53평 |
| 분양예정시기 | 2023년 후반 |
| 입주예정시기 | 2026 예상 |
디에이치방배 ( 방배 5 구역 재개발) 입지
디에이치방배는 서초구 한복판에 위치하고 있으며 앞으로는 동작대교를 건너면 용산구 영동대교를 건너면
건대입구역 등 무려 지하철역이 셀 수 없을 정도로 많습니다. 서울 한복판이기에 교통편은 말할 것도 없습니다.
또한 도보 1분 거리 이수역 위치하며 지하철 두 정거장 거리 서울고속버스터미널 위치하며
2호선을 따라 코엑스 , 롯데월드, 올림픽공원까지 이어지게 됩니다 2KM 예술의 전당 / 1.8KM 잠실종합운동장
위치하고 있습니다.

디에이치 방배 스카이뷰입니다. 앞으로는 남산이 보입니다.
이곳에 33층짜리 아파트가 들어서면 스카이라인은 정말 말할 것도 없겠네요..


디에이치방배 ( 방배 5 구역 재개발) 분양가
디에이치 방배 조합원 분양가 알아보겠습니다.
조합원에서는 전용 59 / 84 / 101 있는데요 평당 5,100만 원 기준으로 보고 있으니
밑에 표 참고하시면 될 거 같습니다.
| 전용면적59㎡ | 12억원~ | 평당 평균가 5,100 만원 ~ |
| 전용면적84㎡ | 16억원~ | |
| 전용면적101㎡ | 19억원~ |
동일조건 인근 실거래가
조합원 분양가만 참고할 것이 아닌 인근 실거래가로 대략적인 금액을 파악해 볼 수 있는데요
디에이치 방배와 동일 조건 내 인근 아파트 실거래가 알아보겠습니다.
강남답게 평당가가 정말 깡패입니다. 평당가 5500만 원 정도가 평균이 되겠습니다.
| 구분 | 방배서리풀그랑블 | 더샵반포리버파크 | 방배중앙센트레빌 |
| 준공일 | 2019. 12 준공 | 2022. 07 준공 | 2021. 06 준공 |
| 총 세대 / 총 동 | 총99세대 / 총 3동 | 총140세대 / 총 1동 | 총42세대 / 총 2동 |
| 최근 매매 실거래 | 최근 매매 실거래가 9억 5천만원 |
최근 매매 실거래가 13억 5천만원 |
최근 매매 실거래가 13억 |
| 평당가 | 평당 5700~ | 평당 6300~ | 평당 5002~ |

디에이치방배 ( 방배 5 구역 재개발) 단지배치도
단지수는 총 29개 동이며 지하 4층 ~ 지상 33층이며 단지 내 근생시설로는 어린이집, 경로당, 체육관, 사우나
수영장, 회의실, 독서실, 카페 있겠습니다, 사실 원래는 건설사에서 초등학교를 지을 예정이었지만
저출산 등등 복합적인 문제로 초품아 ( 초등학교를 품은 아파트 )는 취소하였으니 안타깝습니다.
정비사업 정보몽땅
cleanup.seoul.go.kr


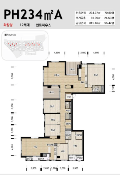
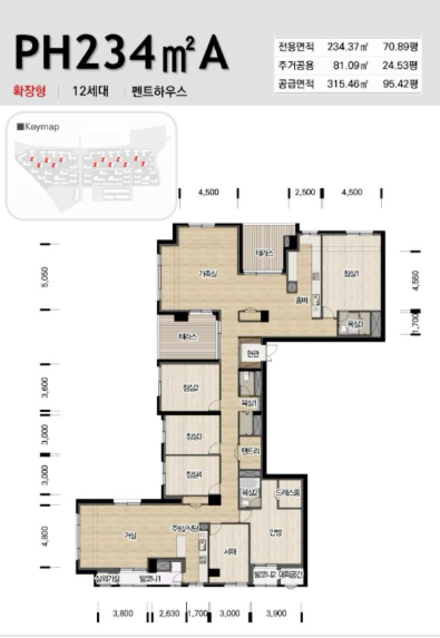
디에이치방배 ( 방배 5 구역 재개발) 평면도
59㎡ /84㎡A-2 / 115㎡ C-1/ 135㎡ C-3 / 168㎡ D / PH234㎡A
총 6개 평형으로 이루어져 있으며 뒤에 영어 알파벳 뭔가 싶으실 텐데요 쉽게 정리해서표 만들 테니 참고 바랍니다.
맨 마지막 PH는 펜트하우스의 약자로 펜트하우스 층입니다.
| 구 분 | 59㎡ | 84㎡A-2 | 115㎡ C-1 | 135㎡ C-3 | 168㎡ D | PH234㎡A |
| 전용면적 | 59.96㎡ | 84.44㎡ | 115.82㎡ | 135.04㎡ | 168.92㎡ | 234.37㎡ |
| 공급면적 | 81.99㎡ | 112.35㎡ | 155.13㎡ | 179.22㎡ | 227.58㎡ | 315.46㎡ |
| 실 평수 | 18.14평 | 25.54평 | 35.03평 | 40.85평 | 51.84평 | 70.89평 |






오늘은 방배 5 구역 재개발인 디에이치 방배 리뷰해봤습니다.
재개발이 된다면 정말 기대가 됩니다.
서울 강서구에서 공인중개사 하고 있습니다.
서울권 재개발이나 , 부동산 투자 관심 많으신 분은 밑에 전화번호로 전화 주시면 친절히 상담해 드리겠습니다!
분양이나 상가까지 상담해 드리겠습니다^^
