등촌 힐스테이트
(강서구 등촌동 366-24번지 및 강서구 등촌동 366-61번지)
안녕하세요 오늘 소개해드릴 내용은 소재지 강서구 등촌동 366-24번지 및 강서구 등촌동 366-61번지
일대 지역 재개발예정이며 재개발이 완성이 되면 등촌 힐스테이트로 재탄생예정인 '등촌역 힐스테이트'
소개해드리겠습니다. 등촌 힐스테이트는 2017년 관리처분인가 신청을 하여 2020년 인가승인을 받고
2023년 현재 철거와 착공만을 남기고 있습니다. 주변 건물에 비하여 시세차익은 얼마일지
조합원 분양가 및 청약 입주일은 언제인지 한번 파악해 보겠습니다.

등촌 힐스테이트 계획
강서구 등촌동 366-24번지는 현재 관리처분인가까지 승인이 된 상태이며 곧 철거를 시작할 예정이며
23년 후반기에 청약 및 분양신청을 받을 계획입니다. 관리처분인가라는 단계는 쉽게 말해 70%까지는
완성이 된 단계이기에 투자나 분양을 받으실 계획이 있으신 분은 이 시기를 놓치면 안 되니
아래 링크 들어가셔서 신청 누르시길 바랍니다. 공식 홈페이지이니 안심하셔도 됩니다.

등촌 힐스테이트 위치
등촌 힐스테이트는 강서구 등촌동 366-24번지 및 강서구 등촌동 366-61번지 일대 지역이며 지하 4층 ~ 지상 15층
이며 총 12개 동으로 541세대로 이루어질 예정이며 이 중 일반분양은 269세대로 지어질 예정입니다.
또한 근처로 무려 지하철역이 6개나 있는 초 역세권이라고 할 수 있겠습니다. 또한 근처 백석초등학교
중학교, 강서대학교등 대학교가 있다는 것은 대학로가 있다는 뜻이니 없는 게 없는 생활 인프라를 자랑합니다.
| 위치 | 강서구 등촌동 366-24번지 및 강서구 등촌동 366-61번지 일대 |
| 세대정보 | 총 541세대 (일반분양 269세대) |
| 규모 | 총 12개동 (지하4층 ~ 지상 15층 ) |
| 일반분양 주택형 (전용면적) | 84㎡(11세대) |
| 분양예정시기 | 2023년 일반분양 예정 |
| 입주예정시기 | 2026년 상반기 입주예정 |


등촌 힐스테이트 입지
등촌 힐스테이트 입지는 한강과 근접하여 있다 보니 입지 측면에서도 훌륭하다고 할 수 있겠습니다
아파트 근처로 도보로 이동가능한 학군 초품아 ( 초등학교를 품은 아파트 ) , 중 고등학교 위치 해있으며
목동에 근처 하다 보니 목동 학원가랑도 근접해 있어 학군 측면에서도 훌륭하다고 할 수 있습니다.
가장 중요한 증미역, 가양역, 염창역 지하철역과 월드컵대교가 바로 앞에 위치해 있기에
다리하나만 건너면 홍대 마포이기에 생활 인프라도 아주 만족스럽다고 할 수 있겠습니다.
사진을 보시면 바로 앞에 한강과 여의도까지 급행으로 바로 출퇴근할 수 있으니
직장인 분들에게 너무 편할 거 같습니다 *초록색이 개발지역입니다

등촌 힐스테이트 실거래가
등촌 힐스테이트는 아직 완공이 되지 않았고 공식 분양 시작도 안 했기 때문에 동일
조건 인근 아파트로 한번 예상해보겠습니다.
| 아파트 이름 | 등촌지와인 | 등촌 파밀리에 더클래식 | 가양역 두산위브 |
| 승인일 | 2023. 06 준공 | 2020. 05 준공 | 2022. 03 준공 |
| 동 / 세대수 | 총136세대 / 총 4동 | 총120세대 / 총 2동 | 총220세대 / 총 4동 |
| 최근 매매 실거래가 |
최근 매매 실거래가 7억 2천만원 |
최근 매매 실거래가 6억 3천만원 |
최근 매매 실거래가 8억3천만원 |
| 평당 가격 | 평당 3.000~ | 평당 3.400~ | 평당 3,500~ |
세 아파트 평당가를 더해서 평균값을 내보면 약 3,300만 원 정도 계산이 됩니다.
또한 등촌은 비규제지역 분양가 상한제 미적용 단지이기에 분양가는 평당 3,000만 원이 넘을 것으로 예상이 됩니다.
하지만 서울 9호선 초역세권인 것을 고려하면 후에 시세차익을 보더라도 나쁘지 않은 투자처로 볼 수 있겠습니다.
등촌 힐스테이트 단지배치도
사진에 보시다시피 총 12개 동으로 나누어져 있습니다.


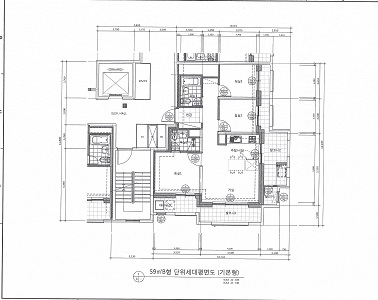
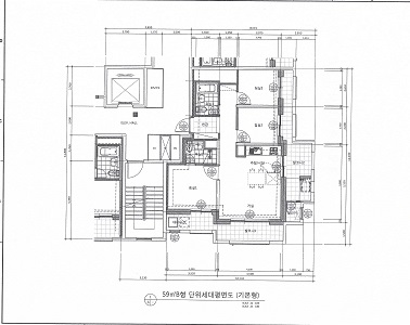
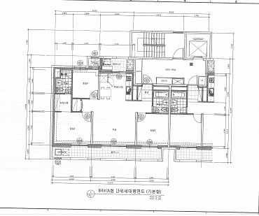
등촌 힐스테이트 평면도
| 3.3㎡ (1평) | 84㎡ A | 59㎡ B | 84㎡ B | 84㎡ D | 84㎡C | 59㎡ A |
| 전용면적 | 84.96㎡ | 59.96㎡ | 84.79㎡ | 84.98㎡ | 84.95㎡ | 59.98㎡ |
| 공용면적 | 92.42㎡ | 68.04㎡ | 92.66㎡ | 93.74㎡ | 93.39㎡ | 66.32㎡ |
총 541세대이며 총 6개의 평형으로 나뉩니다. 만약 평당가가 3500만 원으로 정해진다면
84㎡ 기준으로 8억 7,500이라는 금액이 나오게 됩니다.






등촌역 힐스테이트 청약 정보를 원하시는 분들은 밑에 링크 들어가시면 되겠습니다.
정식 홈페이지이니 안심하셔도 됩니다.
오늘은 재개발 예정인 등촌 힐스테이트 알아보았는데요. 23년 9월 분양예정이라
아직 세부적인 것은 나오지 않았으니 궁금하신 사항 있으면 전화 주시면 되겠습니다.
강서구에서 작은 공인중개사 운영하고 있으니 굳이 등촌역이 아니더라도
궁금하신 사항 전화주시면 친절히 설명해 드리겠습니다 ^^
